天津市红桥区人民政府 2019年12月3日星期二

无障碍 简体| 繁体

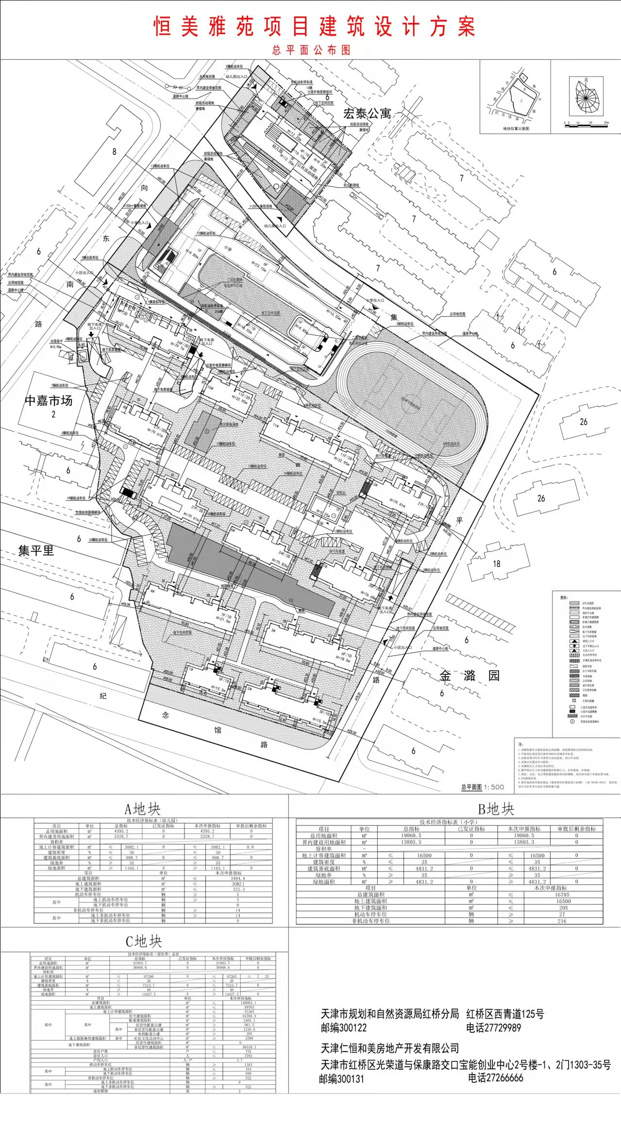
恒美雅苑、小学、幼儿园项目建设工程规划许可证公布通知
来源:天津市规划和自然资源局红桥分局 发布时间:2021-12-17 09:53

      天津市规划和自然资源局红桥分局于2021115日核发了恒美雅苑、小学、幼儿园项目建设工程规划许可证(变更),依据《中华人民共和国城乡规划法》及住房和城乡建设部《关于城乡规划公开公示的规定》的有关要求,现将该项目建设工程设计方案总平面图公布,公布时间至项目规划验收合格。

附件:

关于我们 |  使用帮助 |  网站声明 |  网站地图

主办:天津市红桥区人民政府办公室

网站标识码:1201060001
ICP备案编号:津ICP备10201451号
津公网安备:12010602120171号